Giardino Privato e pertinenze esterne_Umbria_2009
Collaborazione professionale con lo studio Land -i, Arch. M . Antonini
Progetto preliminare, definitivo ed esecutivo. Realizzato
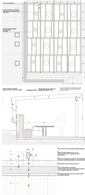
Pedana, pergola e panca_Disegni

Pedana, pergola e panca_As Built
La piscina_Disegni

La piscina_As Built